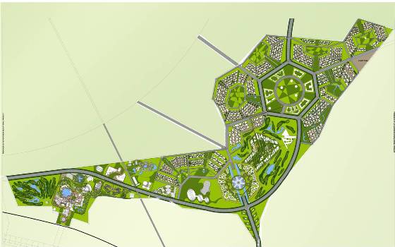
Leisure City, Haryana
Project Name: Leisure City, Haryana
Project Type: Leisure Destination
Client: Haryana Government
Location: Kundli Manesar Palwal Expressway
Total Area: 2800 Acres
Services Offered: Vision Plan & Master Planning
Project Name: Leisure City, Haryana
Project Type: Leisure Destination
Client: Haryana Government
Location: Kundli Manesar Palwal Expressway
Total Area: 2800 Acres
Services Offered: Vision Plan & Master Planning